検索
さらに詳細検索
>English
文化遺産データベース
国指定文化財等データベース
ささきけじゅうたく
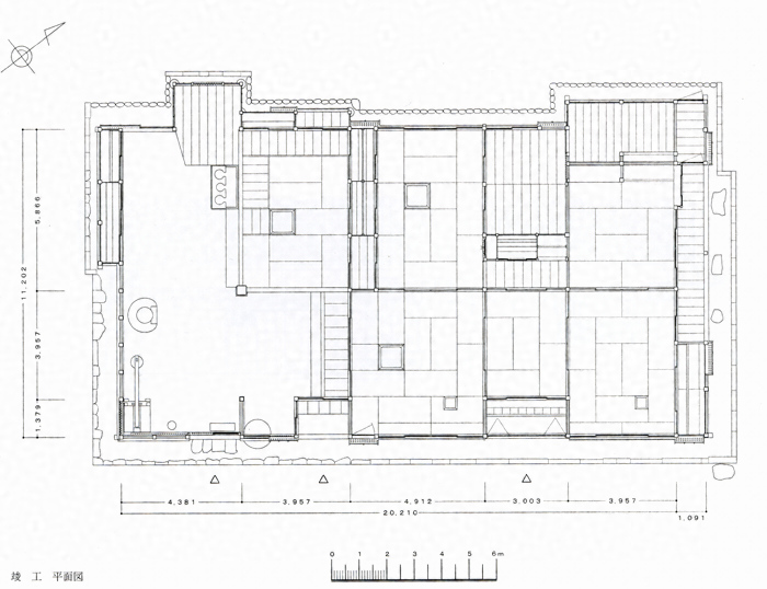
佐々木家住宅
住居建築 / 江戸 / 島根県
島根県
江戸/天保7年(1836)
桁行20.2m、梁間11.2m、切妻造、石置杉皮葺。正面庇付、杉皮葺。背面流し下屋及び庇付き、杉皮葺。南側面物置下屋、杉皮葺。北側面縁、桟瓦葺。
隠岐郡隠岐の島町
<指定年月日>平成4年8月10日
隠岐の島町
重要文化財
佐々木家住宅をもっと見る
財団法人文化財建造物保存技術協会をもっと見る
所蔵館のウェブサイトで見る
佐々木家住宅(島根県隠岐郡西郷町字釜)
旧矢羽田家住宅
玉若酢命神社 社家億岐家住宅
水若酢神社本殿
彦部家住宅 主屋
旧高野家住宅 主屋 巽蔵 馬屋 東門 地実棚 裏門 座敷門 文庫蔵 小屋
古市家住宅
横大路家住宅
慈眼寺 庫裏
旧下木家住宅(旧所在 徳島県美馬郡一宇村)
吉田家住宅
櫻井家住宅(島根県仁多郡仁多町上阿井) 主屋
文化庁 〒602-8959 京都府京都市上京区下長者町通新町西入藪之内町85番4 メール:online@mext.go.jp
共同運営NII Powered by GETA (C) The Agency for Cultural Affairs