検索
さらに詳細検索
>English
文化遺産データベース
国指定文化財等データベース
しょうこうじ ほんどう
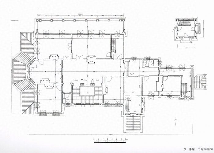
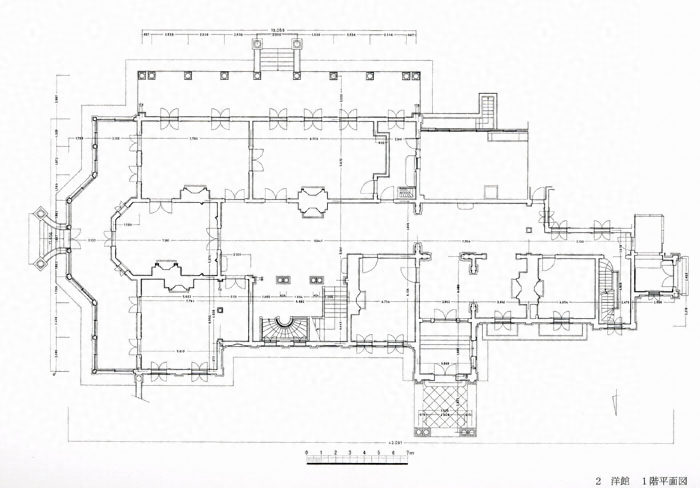
勝興寺 本堂
宗教建築 / 江戸 / 富山県
富山県
江戸/寛政7年(1795)
〈本堂〉 桁行39.4m、梁間37.5m、一重、入母屋造、向拝三間、 亜鉛合金板葺、東面
高岡市伏木古国府
<指定年月日>昭和63年1月13日
勝興寺
重要文化財
勝興寺 本堂をもっと見る
財団法人文化財建造物保存技術協会をもっと見る
所蔵館のウェブサイトで見る
勝興寺 御霊屋
勝興寺 鼓堂
金剛證寺本堂
地蔵院 本堂 鐘楼
勝興寺 台所
多久聖廟
勝興寺 経堂
願成院本堂(愛染堂)
臨済寺本堂
勝興寺 書院及び奥書院
勝興寺 大広間及び式台
文化庁 〒602-8959 京都府京都市上京区下長者町通新町西入藪之内町85番4 メール:online@mext.go.jp
共同運営NII Powered by GETA (C) The Agency for Cultural Affairs