検索
さらに詳細検索
>English
文化遺産データベース
国指定文化財等データベース
りゅうぜんじ さんぶつどう
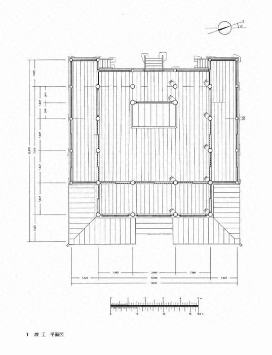
竜禅寺三仏堂
宗教建築 / 室町 / 茨城県
茨城県
室町/永禄12年(1569)以前
桁行三間、梁間四間、一重、両側面及び背面もこし付、寄棟造、茅葺、もこし板葺
1棟
取手市米ノ井
<指定年月日>昭和51年5月20日
龍禅寺
重要文化財
竜禅寺三仏堂をもっと見る
財団法人文化財建造物保存技術協会をもっと見る
所蔵館のウェブサイトで見る
庫蔵寺本堂
明鏡寺観音堂
鹿島神宮仮殿
生善院観音堂
八幡宮本殿
竹林寺本堂
専修寺 御影堂
地蔵院 本堂 鐘楼
飯高寺 鐘楼 鼓楼
金剛證寺本堂
波宇志別神社神楽殿
文化庁 〒602-8959 京都府京都市上京区下長者町通新町西入藪之内町85番4 メール:online@mext.go.jp
共同運営NII Powered by GETA (C) The Agency for Cultural Affairs