菅谷寺本堂及び山門
附 本堂棟札、山門棟札、山門版木

かんこくじほんどうおよびさんもん
つけたり ほんどうむなふだ、さんもんむなふだ、さんもんはんぎ

概要

菅谷寺本堂及び山門
附 本堂棟札、山門棟札、山門版木

かんこくじほんどうおよびさんもん
つけたり ほんどうむなふだ、さんもんむなふだ、さんもんはんぎ

建造物 / 江戸 / 中部 / 新潟県

新潟県

近世

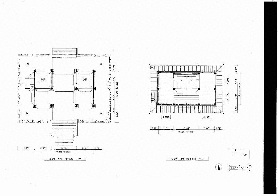
本堂:木造平屋建、入母屋造平入、銅板葺
山門:木造、三間一戸楼門、入母屋造平入、銅板葺

本堂:桁行五間、梁間五間、向拝三間
山門:桁行三間、梁間二間

本堂1棟、山門1棟
本堂棟札2枚、山門棟札2枚、山門版木1枚

新発田市菅谷860番地

新発田市指定
指定年月日:20150403

宗教法人 菅谷寺

有形文化財(建造物)

 菅谷寺本堂は、村上の大工棟梁、四代・板垣伊兵衛によって建造された。棟札から、宝暦11(1761)年に着工し、明和7(1770)年に竣工したと建築年代が特定できる。
 縁を四周にまわしており、このこと自体本堂として珍しく、本格的な「仏堂型本堂」であることを示している。近世に建てられた本堂は外陣を広くとる「方丈型本堂」がほとんどで、本堂の中心に内陣を設け、その周囲に下屋をかける「仏堂型本堂」は極めて少ない。全体に木柄が太く、構造体に大きな変更はなく、その保存度は高い。
 側柱上の斗組は、本来の姿である構造材として位置付けられており、その意味で価値がある。木部は六支掛けとし、よく整っている。軒の手法も、最も豪華とされる二軒平行繁垂木とし、かつそれが四周にまわされており、本格的仕様は高く評価できる。
 菅谷寺山門は、村上の大工棟梁、七代・板垣伊兵衛によって建造された。棟札から、安政5(1858)年着工、慶応2(1866)年上棟と建築年代が特定できる。
 1階は、四隅の柱に獅子頭彫刻があり、虹梁は両側面を除き見えがかり部のすべてに渦紋彫刻が施され、中央には彫刻欄間が飲め込まれている。
 また、斗組は三手先の「挿肘木形式」であり、正面及び背面に彫刻蟇股を設けるなど、人の目につきやすい所に重点的に彫刻を施し豪華さを演出している。
 2階の斗組は禅宗様の尾垂木拳鼻付、二手先の「挿肘木形式」、軒は二軒扇垂木としている。内部には祭壇を構え、漆で仕上げた彫刻板を嵌め込んでいるほか、天井には彩色が施された格天井とするなど、仏の空間として豪華さを演出している。

関連作品

チェックした関連作品の検索