本宮観音堂 附 厨子

もとみやかんのんどうつけたりずし

概要

本宮観音堂 附 厨子

もとみやかんのんどうつけたりずし

建造物 / 江戸 / 東北 / 岩手県

岩手県

近世(17世紀中頃)/1600年代中頃

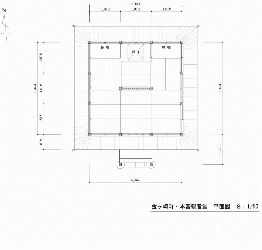
本宮観音堂:木造、桁行三間、梁間三間、一重、宝形造、向拝一間、鉄板葺
附 厨子:木造、一間厨子、一重、宝形造、板葺

本宮観音堂:桁行5.45m、梁間5.45m、向拝の出1.77m
附 厨子:桁行0.94m、梁間0.94m

1棟 1基

金ケ崎町西根大前118番地

岩手県指定
指定年月日:20190416

谷地下自治会

有形文化財(建造物)

【創立沿革】
本宮観音堂の創立沿革は確たる史料に欠き詳らかでないが、宝暦13年(1763)の「風土記書上 西根村」ならびに安永5年(1776)の「風土記御用ニ付此度相改御書上西根村」などには、源義家(1039-1106年)が安倍貞任との合戦の際に陣場として勝利を成し得たので勧請したとある。すなわち「観音之妙智力」によって勝利したことにより勧請したとするもので、これを本宮観音堂の由緒とする考えがある。また、上記「風土記御用ニ付書上控 西根村」には“一寺領及御寄附之事 當處觀音堂ハ大町將監先祖御代正保年中御寄附に相成候事”とある。一方、本宮観音別当山伏・宝寿院忠覚による「本宮山秘仏観音略縁記」(成立年代不詳)では、八幡太郎義家(源義家)の伽藍造営時期を康平5年(1062)と記している。この点については、現本宮観音堂の建築手法、建築細部意匠等の特徴から、中世に遡る建築でないことは明白である。また、金ヶ崎本宮山本山派宝寿院が伊達藩に提出した「書上」(文化14年・1817)には、当時別当は「やり水坊」「針山坊」「坂水坊」など、十二坊を有していたとある。いずれにしても、本尊を十一面観音菩薩立像とする本宮観音堂の創立沿革は定かではない。後世の修理年代については、小屋内に釘止めされている棟札により、木部修理、屋根修理、基礎工事などが昭和48年(1973)に行われ、平成27年10月には身舎の縁廻りを一新する修理が行われている。それ以外の修理年代については確認できていない。

関連作品

チェックした関連作品の検索